
Staalconstructiegoten zijn een cruciaal onderdeel van het dakafvoersysteem van een gebouw. Hun primaire functie is het verzamelen van regenwater van het dak, het naar verticale leidingen leiden en het vervolgens afvoeren naar het afvoersysteem buitenshuis, waardoor wordt voorkomen dat het muren direct erodeert of funderingen doordrenkt. Het productontwerp en de installatie van Liweiyuan worden gekenmerkt door een hoge sterkte en een laag gewicht, waardoor een soepele afvoer en uitzonderlijke duurzaamheid worden gegarandeerd.
Staalconstructiegoten zijn een cruciaal onderdeel van het dakafvoersysteem van een gebouw. Hun primaire functie is het verzamelen van regenwater van het dak, het naar verticale leidingen leiden en het vervolgens afvoeren naar het afvoersysteem buitenshuis, waardoor wordt voorkomen dat het muren direct erodeert of funderingen doordrenkt. Het productontwerp en de installatie van Liweiyuan worden gekenmerkt door een hoge sterkte en een laag gewicht, waardoor een soepele afvoer en uitzonderlijke duurzaamheid worden gegarandeerd.
De staalconstructiegoot van Liweiyuan is gemaakt van corrosiebestendige en slagvaste materialen.
Ons product is thermisch verzinkt en biedt uitstekende corrosieweerstand, lage kosten en een lange levensduur. Verkrijgbaar in diktes van 1,5-2,5 mm en geschikt voor de meeste toepassingen.
Dit product is gemaakt van roestvrij staal en biedt corrosiebestendigheid en is bijzonder geschikt voor kust- of vochtige omgevingen. Verkrijgbaar in diktes van 1,0-2,0 mm, biedt het een hogere prijs maar een lange levensduur.
Onze kleurgecoate staalproducten zijn gebaseerd op gegalvaniseerd staal, gecoat met een weerbestendige coating, zoals polyester of fluorkoolstof, voor zowel corrosiebestendigheid als decoratieve effecten. Ze zijn verkrijgbaar in diktes van 1,2-2,0 mm en zijn geschikt voor gebouwen die een hoge mate van esthetische aantrekkingskracht vereisen.
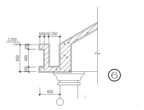
De structurele vorm van de staalconstructiegoot moet worden aangepast aan de dakhelling en het dakrandontwerp. Veel voorkomende typen zijn U-vormig en V-vormig. Het installatieproces is als volgt:
Onze staalconstructiegoten maken gebruik van stalen hoekgootbeugels om ze aan de dakrandbalken of gordingen van de staalconstructie te bevestigen. De beugelafstand bedraagt 600-1000 mm om een gelijkmatige spanningsverdeling over de goot te garanderen.
De afgewerkte goten worden op maat gemaakt en ter plaatse met elkaar verbonden door middel van connectoren of lassen. Op de kruising tussen de goot en de dakbedekking is een kit nodig.
Boven de dakbedekking kunnen wij een dakgoot plaatsen. Het onderste uiteinde van de goot moet onder de dakbedekking worden geplaatst en worden afgedicht met kit. Aan de onderkant van de goot moeten afvoergaten worden aangebracht, voornamelijk voor aansluiting op regenwaterstijgbuizen.
Ons productieproces voor staalconstructiegoten omvat het snijden volgens de tekeningafmetingen, buigen, schilderen, inspectie van het eindproduct, verpakking en verzending. De staalconstructiegoten van Liweiyuan zijn ontworpen en geïnstalleerd om corrosieweerstand, soepele afvoer en duurzaamheid te garanderen, waardoor een efficiënte afvoer wordt gegarandeerd.